Myllytie 4b A, Järvenpää | Pajala
Ota yhteyttä ilmoittajaan
Hannu Savolainen
Kiinteistönvälitys Hansa Oy LKV
040 671 1177
184 000 €
184 000 €
Kerrostalo
2
1
44 m2
2016
Viidennen kerroksen tilava, hyväkuntoinen kaksio vuonna 2016 valmistuneessa kerrostalossa Järvenpään Pajalassa.
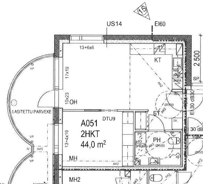
Viidennen kerroksen hyväkuntoinen parvekkeellinen kaksio vuonna 2016 valmistuneessa kerrostalossa Järvenpään Pajalassa. Iso lasitettu parveke.
Avarat näkymät lasitetulta parvekkeelta länteen ja asunnon ikkunoista länteen ja pohjoiseen. Kiva sijainti Westermarckin puiston vieressä. Lyhyt kävelymatka mm. asemalle ja mm. keskustan kävelykadulle.
Hyväkuntoinen asunto, jossa normaalia vähäistä kulumista. Asuinhuoneiden seinissä on ollut joitakin ruuvinreikiä, jotka on kitattu umpeen, mutta seinäpintoja ei ole hoitomaalattu.
Huoneistoselitelmä: Kaksio, jossa olohuone-avokeittiö-eteistilayhdistelmä, makuuhuone, pesutila/wc, lasitettu parveke. Yhtiöjärjestyksen mukaan; 2h+kt. Eteisessä ja makuuhuoneessa liukuovikaapistot. Pesutila/wc-tilassa sähköinen mukavuuslattialämmitys.
Asuntoyhtiön yhteisiä tiloja ovat
- kuivaushuone.
- ulkoiluvälinevarastot.
- lastenvaunuvarastot.
- saunaosasto Myllytie 4b-talon ylimmästä, kahdeksannessa kerroksesta.
- huoneistokohtaiset verkkokomerot 1. kerroksessa niille huoneistoille, joiden huoneistojen yhteydessä ei ole varastokomeroa.
Hallituksen kunnossapitosuunnitelman 25.3.2025 mukaan:
Vuosi - Rakenneosa - Toimenpide - Kuvaus
2024-2025 Viheralueet puut / istutukset. Kunnostus. Piha-alueen maisemointitöitä.
2025 Parvekelasit, Kunnostus, Parvekelasien huoltokierros.
2025 Muut toimenpiteet. Huolto. Väestönsuojan vuositarkastus.
2026 Kanavistot ja kanavistovarusteet. Kunnostus. Ilmastoinnin nuohous ja säätö.
Asuntoyhtiöllä on 30 lämpöpistokkeellista autopaikkaa, jotka jonotusperiaatteella.
TILAA NELIVÄRIESITE SÄHKÖPOSTIISI.
Saat kauttani maksuttoman laadukkaan arvioinnin ja myyntisuunnitelman nykyiselle kodillesi. Soita minulle 040 67 111 77 ja sovitaan aika tapaamiseen.
Aurinkoisin terveisin Hannu
Hannu Savolainen
040 67 111 77, hannu.savolainen@remax.fi
Kiinteistönvälittäjä YKV, LKV, LVV, KiAT, YAT,
MBA, ins., Kaupanvahvistaja
Keskuskauppakamarin hyväksymä kiinteistönarvioitsija (KHK) ja Auktorisoitu kiinteistöarvioija (AKA), yleisauktorisoitu
Lisätiedot ja yhteydenotot
Hannu Savolainen
040 671 1177, hannu.savolainen@remax.fi
RE/MAX Parhaat Kodit | Kiinteistönvälitys Hansa Oy LKV
y-tunnus: 0676907-2
Seuraavat esittelyt
Perustiedot
Hinta ja kustannukset
Kohteen kuvaus
Taloyhtiö
Tontti ja kaavoitus
Lisätiedot
Lähipalvelut
Muut tiedot
Hannu Savolainen
YKV, LKV, AKA, MBA, ins., KHK
RE/MAX Parhaat Kodit | Kiinteistönvälitys Hansa Oy LKV
Kartta

Lainalaskuri
Kuukausierä € / kk
Sinua saattaisi
Kiinnostaa myös nämä
Ostotoimeksianto
Apua asunnon ostoon
Eikö hakukriteereihisi sopivaa asuntoa ole löytynyt? Jännittääkö asunnon ostotarjouksen tekeminen? Välittäjämme auttavat sinua kaikissa asunnon ostoon liittyvissä asioissa.
Lue lisää
































