Metsätie 20 B As, Lahti | Nikkilä
Ota yhteyttä ilmoittajaan
Ari Pirilä
Eximas Oy LKV
044 980 7522
299 390 €
119 756 €
Rivitalo
4
91 m2
2027
ENNAKKOMARKKINOINTI ON KÄYNNISTYNYT!
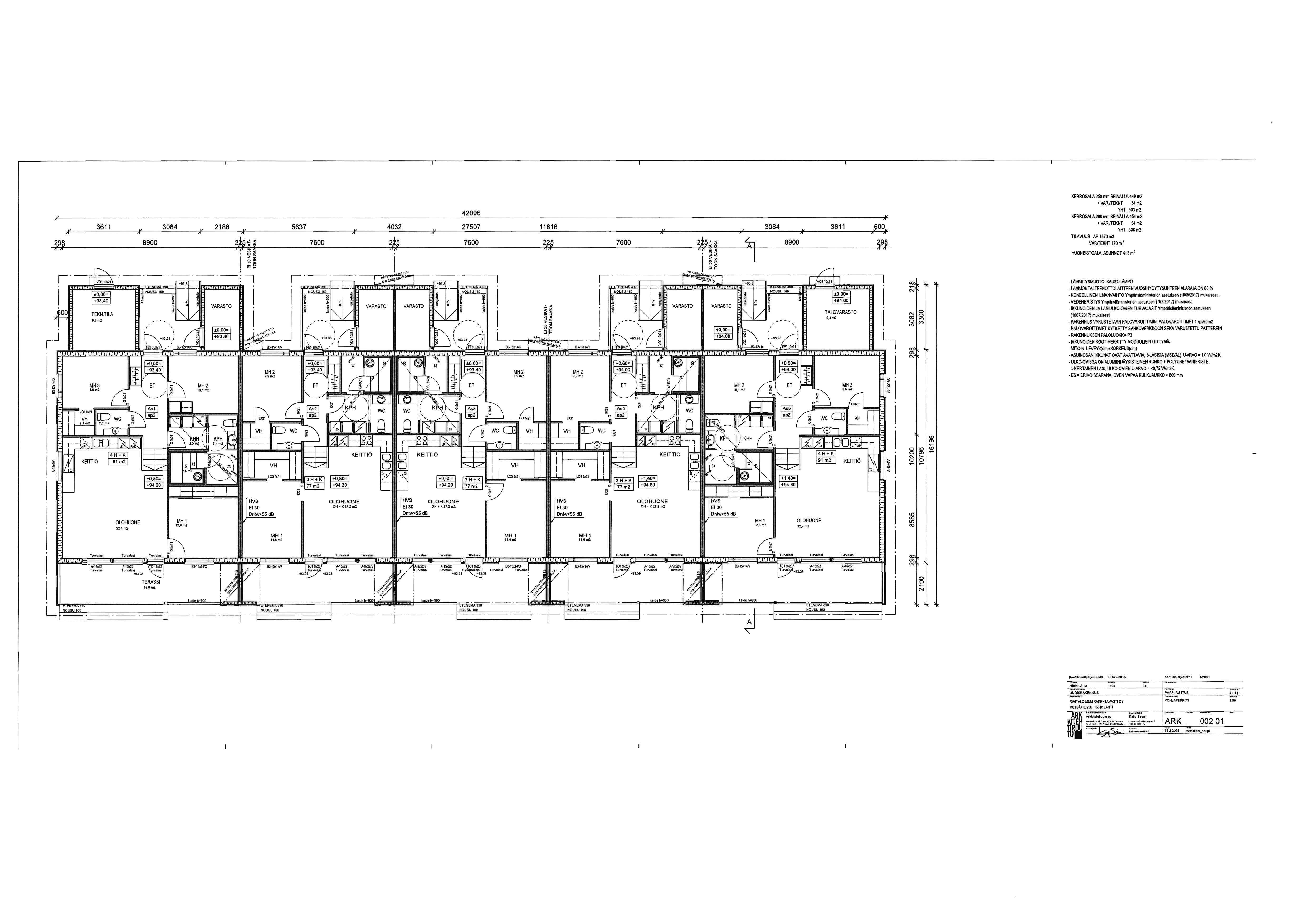
Lahden Nikkilän alueelle rakennetaan yhden kerroksen rivitaloyhtiö. Taloyhtiössä on 5 asuntoa.
Tämä yhtiö valmistuu hyvien liikenneyhteyksien välittömään läheisyyteen. Mahtavat ulkoilualueet ja harrastusmahdollisuudet vieressäsi, keskustaan ei ole pitkä matka.
Neliöitä tässä huoneistossa on 91 kappaletta. Edulliset asumiskustannukset. Maalämpö/vesikiertoinen lattialämmitys, koneellinen huoneistokohtainen ilmanvaihto. Jokaiselle asunnolle kuuluu kaksi autopaikkaa, yksi tolppapaikka ja yksi pihapaikka sekä erillinen lämmin varasto.
Rakentaminen aloitetaan keväällä/alkukesästä 2026, mikäli saamme riittävästi varauksia asunnoista. Taloyhtiö valmistuu talvella 2027. Pääset siis vaikuttamaan pintamateriaaleihin, sisustukseen ennen muuttoa. Samalla saat itsellesi mieluisan kodin.
Rakentaja pidättää oikeuden vähäisiin muutoksiin. Hoitovastike ja muut kulut täsmentyvät myöhemmin. RS-paketista ei tule kuluja ostajalle.
Rakentajana on M&M Rakentavasti Oy
HUOM! Kuvat on otettu aiemmin valmistuneesta ja rakentajan rakentamasta vastaavasta kohteesta.
Mikäli kiinnostuit ja kaipaat lisätietoa, otathan yhteyttä minuun; Ari Pirilä, 044 9807 522 tai ari.pirila@remax.fi.
A-talo
As 1, 91 m2
As 2, 77 m2
As 3, 77 m2
As 4, 77 m2
As 5, 91 m2
Lisätiedot ja yhteydenotot
Ari Pirilä
044 980 7522, ari.pirila@remax.fi
RE/MAX Eximas | Eximas Oy LKV
y-tunnus: 2299743-8
Seuraavat esittelyt
Perustiedot
Hinta ja kustannukset
Kohteen kuvaus
Taloyhtiö
Tontti ja kaavoitus
Lisätiedot
Lähipalvelut
Ari Pirilä
Kiinteistönvälittäjä LKV, LVV, KiAT, Myyntipäällikkö
RE/MAX Eximas | Eximas Oy LKV
Kartta

Lainalaskuri
Kuukausierä € / kk
Sinua saattaisi
Kiinnostaa myös nämä
Ostotoimeksianto
Apua asunnon ostoon
Eikö hakukriteereihisi sopivaa asuntoa ole löytynyt? Jännittääkö asunnon ostotarjouksen tekeminen? Välittäjämme auttavat sinua kaikissa asunnon ostoon liittyvissä asioissa.
Lue lisää



























