Warning: Attempt to read property "nonLocalizedValues" on null in /data/wordpress/htdocs/wp-content/themes/blocksy-child/property_details_v2.php on line 621
Kimokuja 4, Vantaa | Hakunila
Ota yhteyttä ilmoittajaan
78 000 €
73 348,88 €
Kerrostalo
2
1
60,5 m2
1976
Toisen kerroksen kaksio Vantaan Hakunilassa!
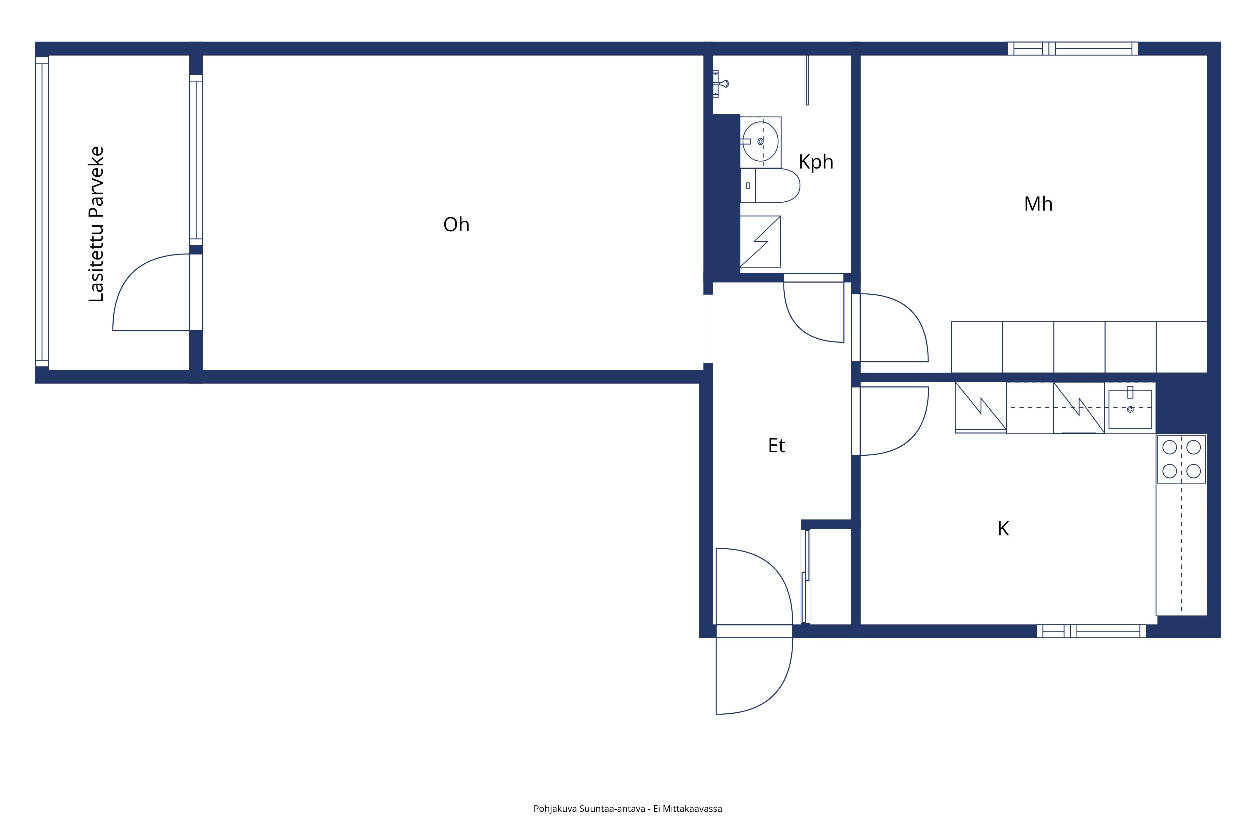
Tässä valoisassa ja tilavassa kaksiossa on näppärä pohjaratkaisu. Asunnossa on 60,5 neliötä, ja se tarjoaa mukavat puitteet niin yksinasujalle kuin pariskunnallekin.
Olohuoneesta on käynti lasitetulle parvekkeelle, joka tuo lisätilaa ja mahdollisuuden nauttia ulkoilmasta ympäri vuoden. Erillinen keittiö on käytännöllinen ja siellä on runsaasti kaappi- ja säilytystilaa. Vuonna 2013 remontoidussa kylpyhuoneessa on modernit mukavuudet. Makuuhuoneessa on reilusti säilytystilaa, mikä helpottaa arjen järjestelyjä.
Asunto sijaitsee toisessa kerroksessa hissillisessä talossa, mikä tekee liikkumisesta helppoa. Taloyhtiö on on täsmällisesti hoidettu, ja siellä on muun muassa sauna ja urheiluvälinevarasto asukkaiden käytössä. Hoitovastikkeeseen sisältyy huoneiston käyttösähkö, vesimaksu sekä taloyhtiölaajakaista. Lisäksi yhtiö saa vuokratuloa omistamastaan liiketilasta.
Hakunilan alueella on paljon ulkoilumahdollisuuksia, ja esimerkiksi urheilukenttä ja uimahalli ovat kävelyetäisyydellä. Liikenneyhteydet ovat erinomaiset, sillä bussipysäkki on aivan vieressä, ja lähistöltä löytyy monipuolisesti palveluita, kuten kauppoja, kouluja ja päiväkoteja. Tämä asunto tarjoaa loistavan mahdollisuuden asua viihtyisässä ympäristössä, jossa kaikki tarvittava on lähellä. Tartu tilaisuuteen ja tee tästä kodista omasi!
Ole yhteydessä ja varaa yksityisesittely tai pyydä lisätietoja. Tervetuloa kotiin! Get in
touch to book a private showing or request more information. Welcome home!
Petter Frisk | 0400-909090 | petter.frisk@remax.fi.
WWW.ASUNTOVEX.FI
Service also in English.
Internet esittely voi olla puutteellinen, pyydä välittäjältä aina virallinen myyntiesite.
Lisätiedot ja yhteydenotot
Petter Frisk
0400 909 090, petter.frisk@remax.fi
RE/MAX Classic | Beako Oy
y-tunnus: 2352560-0
Seuraavat esittelyt
Perustiedot
Hinta ja kustannukset
Kohteen kuvaus
Taloyhtiö
Tontti ja kaavoitus
Lisätiedot
Lähipalvelut
Petter Frisk
Kiinteistönvälittäjä LKV, LVV, KiAT, NHS
RE/MAX Classic | Beako Oy
Kartta

Lainalaskuri
Kuukausierä € / kk
Sinua saattaisi
Kiinnostaa myös nämä
Ostotoimeksianto
Apua asunnon ostoon
Eikö hakukriteereihisi sopivaa asuntoa ole löytynyt? Jännittääkö asunnon ostotarjouksen tekeminen? Välittäjämme auttavat sinua kaikissa asunnon ostoon liittyvissä asioissa.
Lue lisää








































